15 Main Street

Carrieton

Under Offer

4
1

Property Description

Traditional Stone Home or Weekend Getaway

Originally one of the first homes built in the town, if only the walls could talk with plenty of history in the region its now your turn to experience the Flinders region from your back door step, whether you're into bushwalking, camping or four-wheel driving there is no shortage of action.

Let alone being a few minutes from the Carrieton pub and a few more from the Carrieton Rodeo grounds.

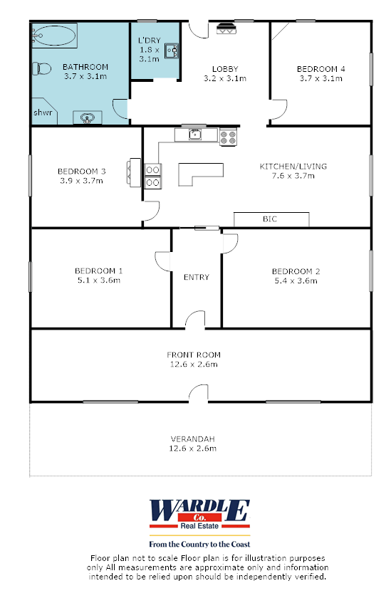
- 3 Bedrooms with carpet floors and ceiling fans in Bed 1 & 2, built in robes

- 1 Bathroom with tiled floor, single vanity, shower, bath and toilet

- Kitchen is a traditional country layout with large bench space and central island bench, lino floor, freestanding gas cooktop/oven with original Metters wood stove

- Lounge room with wall air-conditioner

- Front room has a lino floor with new split system air-conditioner

Additional Features include:

- slow combustion heater in mudroom

- electric hot water system

- connection to town bore water

- rainwater storage along with filtration system 25,000L approx.

- 3kw solar

There is plenty of storage space with 3 sheds over the property with concrete floor and power in 2, and the established native garden with added fruit trees is a real attractant for local wildlife.

Escape to the country has never been more true with a simple life ahead of you for the weekends or weeks on end.

CT5253/185, 5572/412, 6165/770 & 5577/903

Land Size: 4,174 sqm approx.

LGA: District Council of Orroroo Carrieton

Zoning: Township

RLA228106

Property Code: 10037

Property Features

Land Size

4,174 Square Mtr

Built-in Robes

no

Open Fire Place

no

Study

no

Solar Panels

no

Water Tank

no

Location

Agent

Angus Barnden

Agency

Wardle Co Real Estate
(08) 8633 4555
martin.stringer@wardleco.com.au
90 Florence Street Port Pirie
Port Pirie, SA 5540