15006 Riddoch Hwy

Coonawarra

Contact Agent

3
2
2

Property Description

Versatile Opportunity in the Heart of Coonawarra

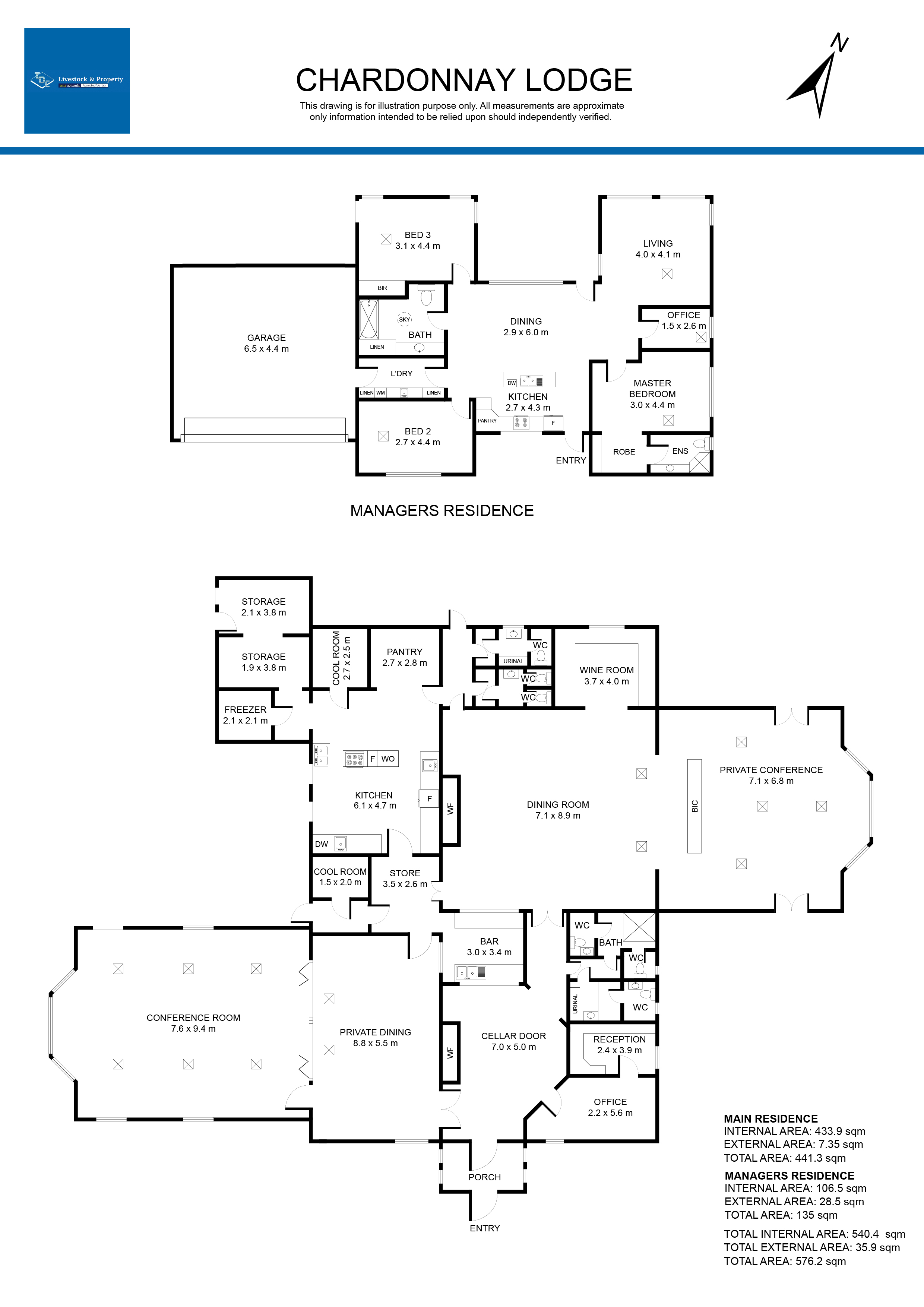
Chardonnay Lodge

TDC Livestock and Property are proud to present to market 15006 Riddoch Highway Coonawarra, or “Chardonnay Lodge” as it is widely known. This amazing property offers a stunning, yet versatile proposition that has a rich history and endless future opportunity.

Spanning over 7115m2 the main building currently operates as a conference and dining facility with cellar door sales, with endless potential for other ventures such as an Brewery or Distillery, Art Gallery or Health Retreat to name just a few. With fantastic Coonawarra Cellar Doors scattered along the Riddoch Highway, the parallel positioning of Chardonnay Lodge offers unbeatable road frontage and appeal for visiting tourists.

A well-appointed three-bedroom Manager’s Residence is also offered on the title.

Main Building

The double brick main building is breathtaking, with soaring high ceilings, open fireplaces and stain glass feature windows all adding to the appeal. Stunning louvered windows feature throughout as well as timber highlights and skylights. The current Vendor’s have paid particular attention to maintaining and improving the building with recent improvements including external painting, replacing windows and shutters, structural and equipment upgrades and fencing just to name a few.

Externally a large gravel carparking area is convenient for large conference groups or marquees, complete with attractive post and rail fencing and stunning rose gardens, lush lawn and established trees. “Chardonnay Lodge” truly provides the perfect backdrop for weddings, special events or your new business venture.

The Main Building offers:

- Large conference room

- Break-out room (adjoining the conference room)

- Commercial kitchen with cool-room, freezer, pantry and storage rooms

- Bar

- Wine room

- Entrance foyer/cellar door sales area

- Large dining room

- Private conference room (which could also be a Manager’s residence)

- Offices

- Bathroom facilities

The building could easily be converted into a magnificent residential home.

Manager’s Residence

The well-appointed Manager’s Residence provides a spacious three-bedroom home with double bay garage under the main roof. Situated to the North of the main building the property offers an escape for the Manager and also provides a fantastic AirBnB proposition.

The Manager’s Residence offers:

- Open plan kitchen and dining area with stunning raked ceiling and large windows providing a beautiful Northern outlook over the vineyards

- The kitchen features a dishwasher, gas cooking, in-wall oven and ample storage (including corner pantry)

- A cosy lounge with beautiful pure wool curtains (featured throughout the home), once again offering Northern light

- Three spacious bedrooms (two with BIRs), main with ensuite

- Large main bathroom

- Small utility room/office

- Ducted heating and cooling

- Double bay garage with electric rollers doors

Also on offer on the allotment:

- 4 bay storage shed

- Ample rainwater

- Bore

- Pop up sprinklers

- Water licence

- Gas hot water

Location

“Chardonnay Lodge” is nestled in the heart of the Limestone Coast of South Australia only a short distance from the Victorian Border, the Coonawarra Wine Region is a comfortable half-day drive from the bustling capital cities of Adelaide (SA) and Melbourne (VIC).

Regarded as one of Australia’s most internationally celebrated wine regions, Coonawarra is famous for its vivid Terra Rossa red soil and world class wines. Home to over 25 Cellar Doors scattered along and just off the Riddoch Highway, Coonawarra is a true tourism destination.

Coonawarra is located a mere 8km North of Penola which boasts fantastic amenities, Schools, Hospital, Hotels and award-winning Restaurant. Naracoorte is located only 41 km North and provides a larger shopping and hospitality precinct. The Mt Gambier airport is located 52km South, offering daily flights to Melbourne and Adelaide.

“Chardonnay Lodge” is truly a unique opportunity to own a prime piece of real estate in a renowned wine region with so much potential and scope. Expressions of Interest close Friday, 28th February 2025, 4pm. Contact Mark De Garis 0428 372 124 or Karly Honer 0438 339 729 for a property memorandum or to arrange an inspection.

Property Code: 960

Property Features

Land Size

7,115 Square Mtr

Built-in Robes

no

Open Fire Place

no

Study

no

Solar Panels

no

Water Tank

no

Location

Agent

agent picture

Mark De Garis

Director/Real Estate Manager

Karly Honner

Agency

Thomas, DeGaris & Clarkson
08 87372695
tdc@tdcagents.com.au
49 Church Street Penola81 Henty Street Casterton Penola
South East, SA 5277