8 Tamblyn Street

Clare

Under Offer

4
2
3

Property Description

MODERN FAMILY HOME IN PRIME LOCATION

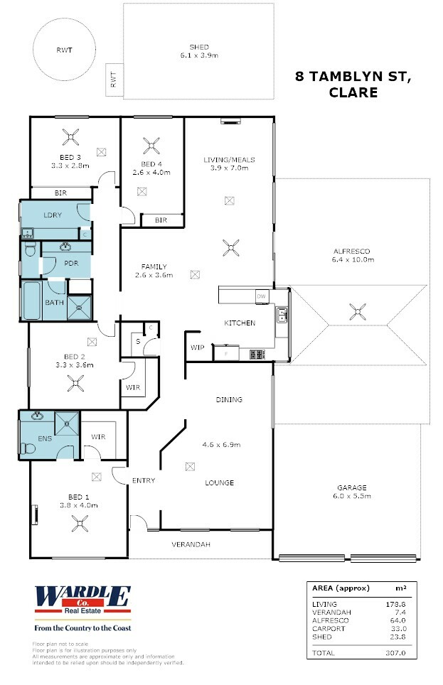
Modern brick veneer with elevated views of tree-tops. Wide tiled hallway and featured vaulted ceiling from lounge room.
The Master bedroom offers a spacious ensuite and walk-in robe. Four bedrooms in total, all with ceiling fans, built-in wardrobes. Three-way bathroom with large vanity. Well-designed kitchen/dine and family room with reverse cycle split system and evaporative air conditioning ducted throughout.
The galley kitchen provides long, raised breakfast bar, great bench area, cupboards and even a servery, ideal for barbecue under the pergola.
Quality fixtures and fittings throughout the home.
Double carport UMR linked with 10m x 6m* pergola and 6m x 4m* shed. For energy saving, a large 13.3kW solar System and 2 Tesla Batteries 16kW
Low maintenance yard with generous lawn area for the kids to play on. Great location in a popular residential estate

* Denotes Approximate RLA228106

Property Code: 11728

Property Features

Land Size

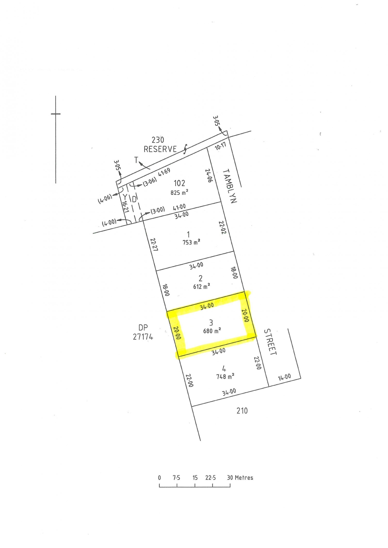
680 Square Mtr

Built-in Robes

no

Open Fire Place

no

Study

no

Solar Panels

no

Water Tank

no

Location

Agent

Graeme Nield

Agency

Wardle Co Real Estate
(08) 8633 4555
martin.stringer@wardleco.com.au
90 Florence Street Port Pirie
Port Pirie, SA 5540