950 Wagonga Scenic Drive

Narooma

Contact Agent

4
2
4

Property Description

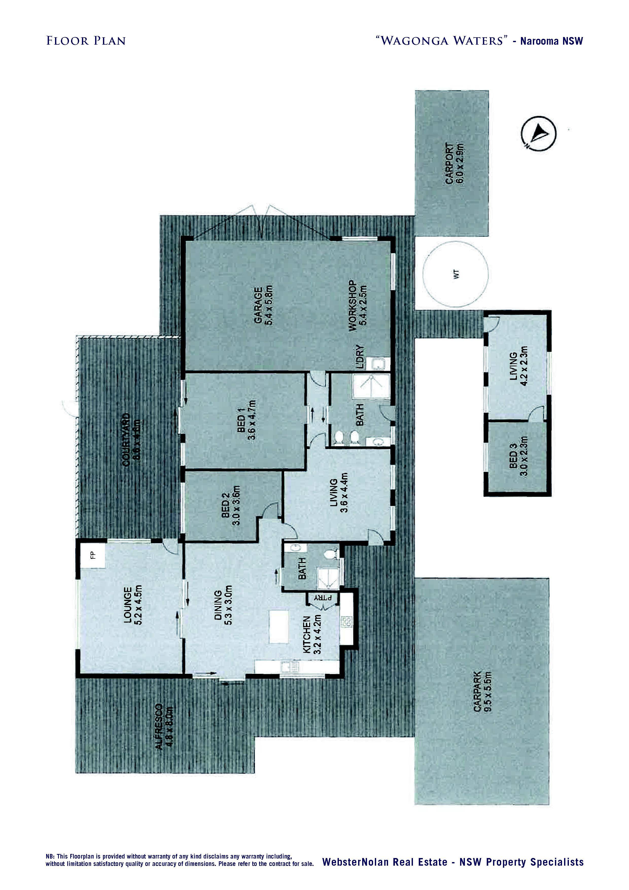
Stunning Prime Waterfront Address on Wagonga Inlet

Approx. 2.5 km Mean High-Watermark Ownership
Pristine & Totally Private Location
Boat Shed & Boat Ramp with Ocean Access
Outstanding Fishing & Big Plump Sydney Rock Oysters

Approx. 44.14 ha – 109 acres.

- 25 mins Narooma, 15 mins Tilba Tilba, 20 mins Princes Highway, 35 mins Bermagui, 40 mins Moruya airport.
- Well-presented 2-bedroom managers residence with separate 2 bedroom studio/office.
- Approved boat shed, separate boat ramp – deep water access.
- Dual occupancy dwelling entitlement STCA – build your dream home. Underground power & Telstra line. Mobile coverage.
- Large all steel 3 bay machinery shed.
- Paddock to run a few horses or cattle.
- Native timber bushland and temperate rainforest.

"Wagonga Waters" is one of those rare properties which rarely come onto the market and is the ideal coastal retreat.

Detailed Information Memorandum available.

For sale by Expressions of Interest: Closing Date Wednesday 12th November 2025

Property Features

Land Size

44 Hectare

Airconditioning

no

Built-in Robes

no

Open Fire Place

no

Location

Agent

agent picture

David Nolan

Director

Agency

Webster Nolan Real Estate
02 8394 8875
admin@websternolan.com.au
596 Crown StreetCarrington House SURRY HILLS
Sydney, NSW 2010