1242 Old Comaum Rd

Coonawarra

'WINDIGI' - $1,500,000

6
2
4

Property Description

‘’Windigi’’ — Stunning Lifestyle Retreat with Two Dwellings, Minutes from Penola

Set upon 71.16 hectares (175.84 acres) of picturesque countryside, Windigi offers the perfect balance of space, seclusion, natural beauty, and income potential. Ideally located just 15 minutes north-east of the thriving township of Penola, and within easy reach of the renowned Coonawarra wineries and restaurants, this exceptional property combines rural tranquillity with lifestyle versatility — whether for primary production pursuits, a farm-stay business, or your own private escape.

The land showcases a diverse landscape, from lighter loam soils to rich black loam surrounding the naturally formed swamp that sits at the heart of the property. This idyllic setting creates a sanctuary for native wildlife and offers breathtaking sunrise and moonrise views from the decks and living spaces of both dwellings.

In spring, the swamp transforms into a spectacular natural feature — a haven for birdlife and a serene backdrop to relax and unwind. Whether grazing livestock, exploring on horseback or motorbike, or simply soaking in the beauty of your surroundings, Windigi delivers the ultimate country lifestyle experience.

Property summary:

- Two solid three bedroom stone dwellings

- 7 paddocks + house paddock

- Stock yards

- 17 x 12m shed + other sundry shedding

- External fences replaced in the past 5 years. Internal fences in good condition

- Reliable water supply via 2 bores + windmill, feeding 5 troughs

- All weather access road to dwellings

- School bus accessibility and rubbish collection available

- Ample rainwater

- Plant and equipment negotiable

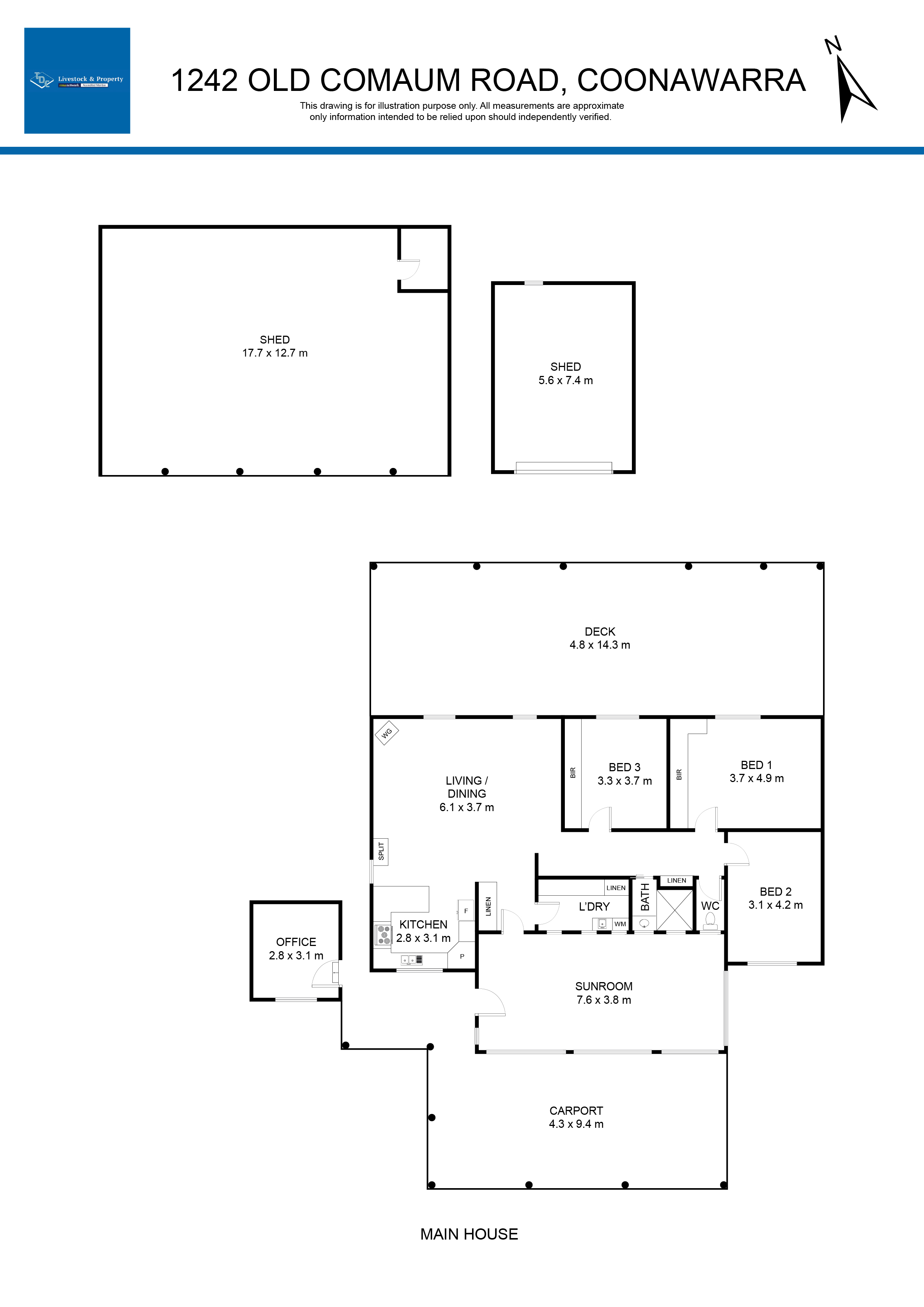
Main House

The main home has undergone extensive renovations in recent years further improving and adding character charm and appeal. The home offers:

- Three spacious bedrooms (two with BIRs)

- Stylish renovated bathroom

- Renovated open plan kitchen, living and dining with views over the wetland, and seamless transition to the decked entertaining area. The kitchen offers dishwasher, beautiful Jarrah timber benchtops and gas cooking.

- Stunning 4.8m x 14.3m large timber deck overlooking the property

- Slow combustion heating and reverse cycle A/C

- Large rumpus room at rear of the home

- External office

- Carport

- Established garden with a vast variety of fruit trees and veggie garden

Second House

The second home is situated approximately 180m from the main dwelling and offers a solid stone, functional and attractive layout. The home would make an ideal rental property, AirBNB or the perfect place for friends and family to relax in their own space when visiting. The home offers:

- Open plan kitchen, living and dining with slow combustion fire and split system A/C

- Three spacious bedrooms (two with BIRs)

- Bathroom with shower over bath, and adjoining separate toilet

- Updated 7.5m x 2.9m decking area with beautiful views

- Polished timber flooring

A sanctuary of space, serenity, and opportunity, Windigi is a stunning country retreat where nature and lifestyle effortlessly combine. Don’t miss your chance to call Windigi your own. Contact Karly Honner 0438 339 729 or Mark De Garis 0428 372 124 today to arrange an inspection.

Property Code: 1013

Property Features

Land Size

176 Acre

Built-in Robes

no

Open Fire Place

no

Study

no

Solar Panels

no

Water Tank

no

Location

Agent

Karly Honner

agent picture

Mark De Garis

Director/Real Estate Manager

Agency

Thomas, DeGaris & Clarkson
08 87372695
tdc@tdcagents.com.au
49 Church Street Penola81 Henty Street Casterton Penola
South East, SA 5277