2 Julia Tce

Kadina

Under Offer

3
1
2

Property Description

DEVELOPERS AND INVESTORS, HERE IS YOUR CHANCE

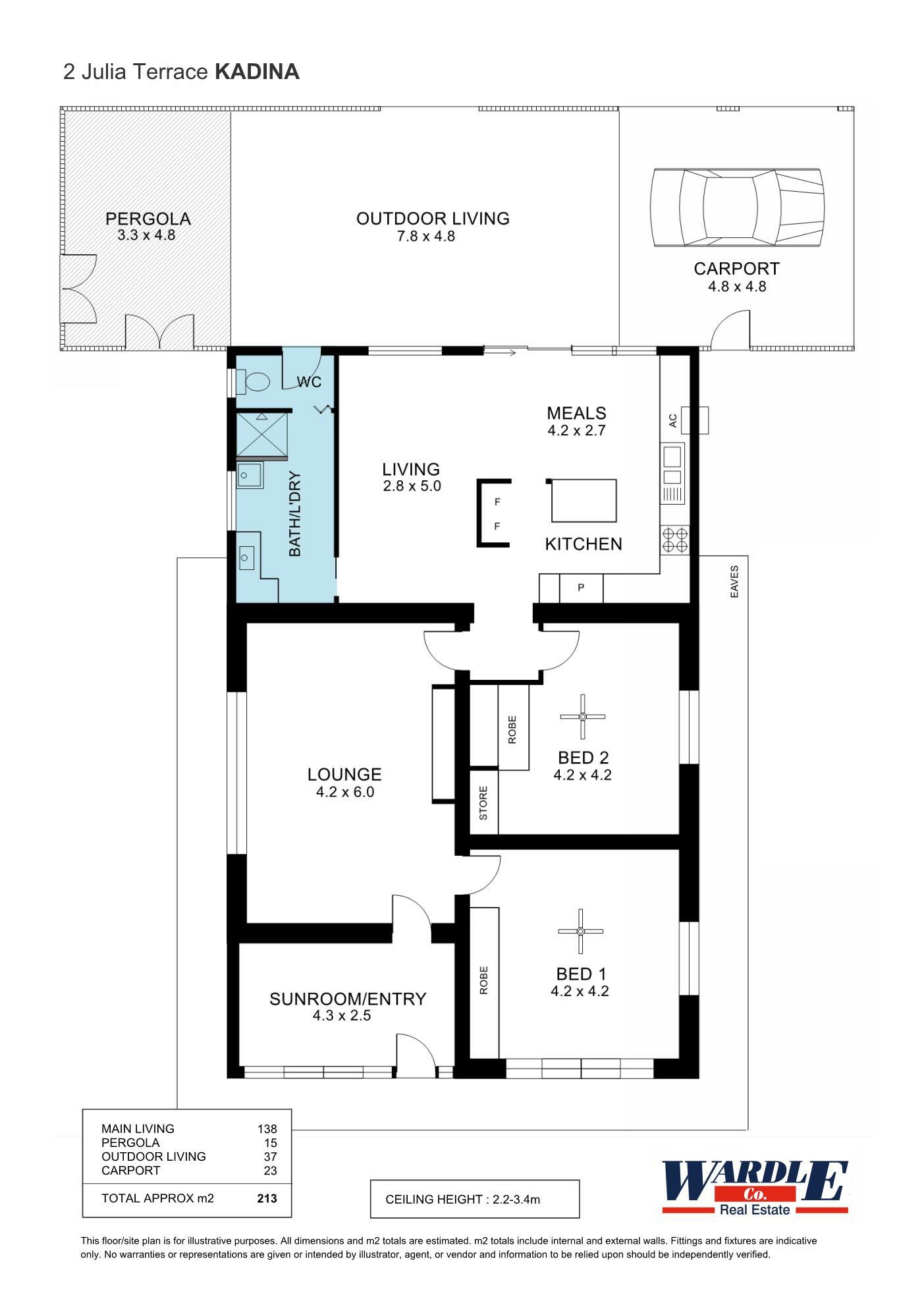
An excellent opportunity for investors or developers; secure a neat, well maintained home while also taking advantage of the potential to subdivide two additional allotments (STCC). With lane access, this 1540 sqm* allotment has a depth of 55m*, and a 28m* road frontage, this property ticks plenty of boxes for those looking to maximise value.

The home features:

- 2/3 bedrooms, two with built-in robes

- Lounge room with vinyl flooring

- Tidy kitchen with gas cooktop

- Dining room

- Sitting room

- Combined laundry/bathroom with shower, vanity, and W/C

Outside includes a full length rear verandah, brick shed, and rainwater tank. Do the math and see what opportunities this may lead to.

Contact us today to book your inspection!

Council Rates 25/26 - $2040.20 per annum

*Denotes approximate

RLA228106

Property Code: 11944

Property Features

Land Size

1,540 Square Mtr

Built-in Robes

no

Open Fire Place

no

Study

no

Solar Panels

no

Water Tank

no

Location

Agent

agent picture

Brenton Brind

Nathan Collins

Agency

Wardle Co Real Estate
(08) 8633 4555
martin.stringer@wardleco.com.au
90 Florence Street Port Pirie
Port Pirie, SA 5540